Discovery Studios Dundee.
Progress Photos - 5 June 2025
Week 46 out of 54-weeks = 85% stage.
8-weeks to practical completion.
Level 0 - Studio 10 - Showroom
-
-
Entrance Door
-
Toilet Door
-
Toilet
-
Kitchen Units
-
Kitchen Units
-
Study Desk & Dining Bar
-
Bed
-
Bed Storage
-
Window & Blinds
-
Ceiling
-
Ceiling
-
Floor Finishes
-
Rear Exit Corridor
-
Fire Escape Stair
-
Stair 4 Exit
-
Studio 10 Window
Externals
-
-
North Elevation
-
Northeast Corner
-
East Elevation
-
Southeast Corner
-
Courtyard Elevations
Level 0
-
-
Floor Plan
-
Entrance
-
Canopy
-
Reception
-
Reception
-
Reception
-
Store
-
Office
-
IT Room
-
Studio 1
-
Studio 1
-
Studio 2
-
Studio 2
-
Studio 2
-
Studio 3
-
Studio 4
-
Studio 5
-
Studio 6
-
Studio 7
-
Studio 8
-
Studio 9
-
Studio 10
-
Studio 11
-
Studio 12
-
Studio 13
-
Studio 14
-
Studio 15
-
Welfare
-
Studio 16
-
Studio 17
-
Studio 18
-
Studio 19
-
Corridor
-
Corridor
-
Corridor
-
Corridor
Level 0 - Block B
-
-
Floor Plan
-
Entrance to Block B
-
Lockers
-
Accessible Toilet
-
Laundry Corridor
-
Toilets
-
Laundry Room
-
Laundry Room
-
Laundry Corridor
-
Library
-
Library
-
Meeting Space
-
Meeting Space
-
Cinema
-
Cinema
-
Lounge & Games
-
Lounge & Games
-
Lounge & Games
-
Lounge & Games
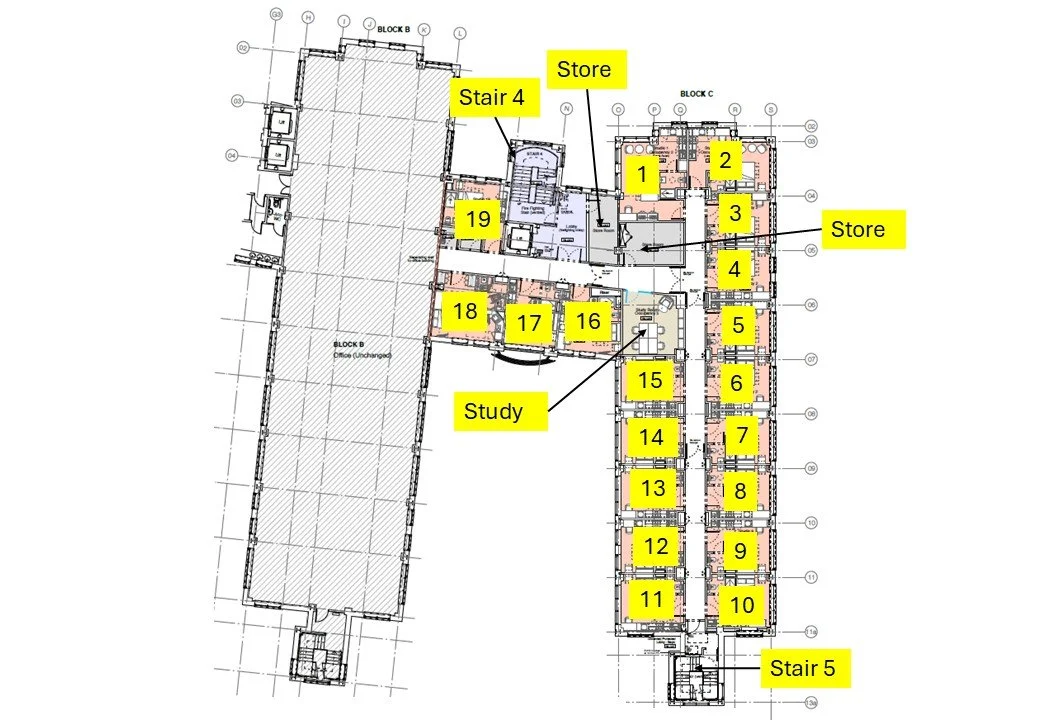
Level 1
-
-
Floor Plan
-
Lift Lobby
-
Lift Lobby
-
Lift Lobby
-
Lobby Store
-
Store
-
Study
-
Studio 1
-
Studio 1
-
Studio 1
-
Studio 2
-
Studio 2
-
Studio 3
-
Studio 4
-
Studio 5
-
Studio 6
-
Studio 7
-
Studio 8
-
Studio 9
-
Studio 10
-
Studio 11
-
Studio 12
-
Studio 13
-
Studio 14
-
Studio 15
-
Studio 16
-
Studio 17
-
Studio 18
-
Studio 19
-
Corridor
-
Corridor
-
Corridor
-
Corridor
-
Corridor
Level 2
-
-
Floor Plan
-
Lift Lobby
-
Lift Lobby
-
Lobby Store
-
Store
-
Study
-
Studio 1
-
Studio 1
-
Studio 1
-
Studio 2
-
Studio 2
-
Studio 3
-
Studio 4
-
Studio 5
-
Studio 6
-
Studio 7
-
Studio 8
-
Studio 9
-
Studio 10
-
Studio 11
-
Studio 12
-
Studio 13
-
Studio 14
-
Studio 15
-
Studio 16
-
Studio 17
-
Studio 18
-
Studio 19
-
Corridor
-
Corridor
-
Corridor
-
Corridor
Level 3
-
-
Floor Plan
-
Lift Lobby
-
Lift Lobby
-
Lift Lobby
-
Lobby Store
-
Store
-
Study
-
Studio 1
-
Studio 1
-
Studio 1
-
Studio 2
-
Studio 2
-
Studio 3
-
Studio 4
-
Studio 5
-
Studio 6
-
Studio 7
-
Studio 8
-
Studio 9
-
Studio 10
-
Studio 11
-
Studio 12
-
Studio 13
-
Studio 14
-
Studio 15
-
Studio 16
-
Studio 17
-
Studio 18
-
Studio 19
-
Corridor
-
Corridor
-
Corridor
-
Corridor
Level 4
-
-
Shaft Wall
-
Shaft Wall & Condensers
-
Water Tank
-
Calorifiers
-
Boilers
-
Lift Plant Room
-
Lift Shaft
-
Lift Shaft
-
Lift Shaft
Stair 4
-
-
Smoke Vent
-
Level 4
-
Level 4 to Level 3
-
Level 3
-
Level 3
-
Level 3 to Level 2
-
Level 2
-
Level 2
-
Level 2 to Level 1
-
Level 1
-
Level 1 to Level 0
-
Level 0
Stair 5
-
-
Smoke Vent
-
Level 3
-
Level 3 to Level 2
-
Level 3 to Level 2
-
Level 2
-
Level 2 to Level 1
-
Level 2 to Level 1
-
Level 1
-
Level 1 to Level 0
-
Level 1 to Level 0
-
Level 1 to Level 0
-
Level 0